A design for a two-story apartment with a garden, located just outside the centre of Rotterdam.
The owner of this apartment wanted her house to have an open atmosphere, but at the same time the different spaces should have their own identity.
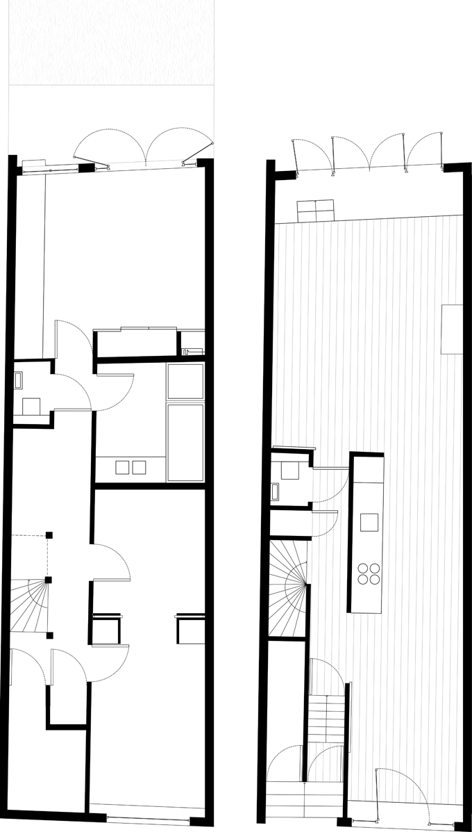
The second floor is the living area of the house. Centre of the area is the kitchen block, which organises the different spaces. The wall in the back of the kitchen gives privacy to the staircase and to the toilet. The short wall at the right side of the kitchen has enough length to define the living room as a space, different than the kitchen area. As the owner loves to cook for friends, the opening between the entrance of the house and the kitchen block immediately welcomes the visitor to the kitchen and dining room. If needed, sliding doors can change the routing at this floor.
The first floor is the private part of the house. Whereas on the second floor a closed block is the spatial organisation element, here an open space organises the different surrounding spaces.

Due to former constructions in the house, hardly any of the original decorative details survived. In co-operation with the owner, who is a product designer with an interest for graphic design, a contemporary version of decorative details will be added to strengthen the identity of the different spaces.

Jeske Weerdesteijn, 2o13, Rotterdam, the Netherlands